CONSTRUCTION CONTAINER RENTAL CONSTRUCTION CONTAINER RENTAL
Construction containers rental
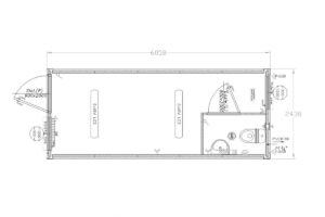
The rental of construction containers and modular buildings for construction sites is preferred by companies carrying out construction investments and investment projects. Containers intended for rent are facilities with separate offices, a meeting room, a construction manager’s toilet, sanitary facilities, a social room, a kitchen, changing rooms for manual workers, and a handy warehouse and changing room.
Construction containers for rent are single container modules located near the construction site or connected into one modular building. Mobilbox employees design each of their multi-module facilities, consulting and agreeing on all details with the client. Construction containers can be installed due to their purpose near the work being carried out. We offer construction containers and modular facilities in various configurations based on a rental agreement, providing service and assembly of construction containers.
Construction site rental – construction containers at an attractive price
Rented construction containers are a modern, efficient and quick way to provide employees with a comfortable workplace and shelter on the construction site, divided into the spaces necessary for employees, such as: dining room, kitchen, cloakroom, offices, study, document archive, storage room for all employees working on the construction site.
Our experience in the assembly and construction of objects from construction containers makes it easier for us to carry out complex projects throughout Poland. We try to provide an optimal, dedicated container solution, adjusted to the size of employment, the number of management employees and the number of specialists working on the construction site. We equip the rented construction site with: office furniture , rented RTV and household appliances , stairs and platforms for containers , panoramic windows and glazing , kitchen furniture or powder fire extinguishers!
The various configurations of construction containers with office equipment offered provide a pleasant space for work. Interchangeable wall panels and solid container frames are adapted to set up containers up to three storeys high. In this way, we provide the possibility of erecting a facility for a larger group of people on a small area and the arrangement of departments on one of the floors.
More about possible container configurations can be found on the container design and container production pages.
CONSTRUCTION CONTAINER RENTAL
Manufacturer of construction containers for rent
Construction containers are manufactured in a plant specializing in the construction of container facilities for various purposes, employing specialist designers, welders, technologists and assemblers of modular facilities.
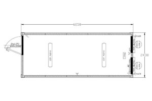
Kontenery budowlane na wynajem – wymiary i charakterystyka
CONSTRUCTION CONTAINER 20H
CONTAINER STRUCTURE: steel, welded floor frame, flat roof and columns located in the corners of the container. The structural elements are covered with anti-corrosion coatings in red RAL 3000 – RENTAL. Rainwater is drained through PVC gutters located inside the corner columns of the container. The supporting structure of the container is in class EXC2 according to the PN EN 1090-1 standard. CE marking. Welded elements according to PN EN ISO 3834-2.
FLAT ROOF: 0.55 mm thick galvanized sheet metal, 10 mm thick chipboard, 100 mm thick mineral wool, vapour barrier foil, 12 mm thick white laminated board. Maximum snow load on flat roof 1.6 kN kg/m².
WALLS: are made in panel technology: 10 full panels on the long side, 4 panels on the short side (2 window, 1 door, 1 full) a total of 14 replaceable panels. The panels are most often mounted as standard: door and window on the shorter sides and full on the longer sides of the container.
CONSTRUCTION: wooden frame: 0.55 mm thick painted sheet metal, grey RAL 7035 trapezoid, 60 mm thick mineral wool, vapour barrier foil, 12 mm thick white laminated board.
FLOOR: 0.55 mm thick galvanized trapezoidal sheet, 100 mm thick mineral wool, vapour-permeable foil, 22 mm thick floor board, min. 2 mm thick grey PVC floor covering, floor finishing with skirting boards.
Maximum floor load 200 kg/m².
PVC WINDOWS: (RU), 900×1200 mm, white with external roller shutter.
EXTERIOR DOOR: white, single-leaf, steel, 900×2000 mm.
Dimensions table
| TYPE | External dimensions | External dimensions | External dimensions | Internal dimensions | Internal dimensions | Internal dimensions | Weight |
| L | W | H | L | W | H | Weight | |
| MB20 | 6,058 | 2,438 | 2,591 | 5,858 | 2,238 | 2,330 | 1,980 |
| MB20 ECO | 6,058 | 2,438 | 2,591 | 5,905 | 2,270 | 2,330 | 1,650 |
| MB10 | 2,991 | 2,438 | 2,591 | 2,791 | 2,238 | 2,330 | 1,130 |
| MB10 ECO | 2,991 | 2,438 | 2,591 | 2,838 | 2,270 | 2,330 | 820 |
| MB25 | 6,058 | 2,438 | 2,591 | 5,858 | 2,238 | 2,330 | 2,150 |
| MB26 | 6,058 | 2,438 | 2,591 | 5,858 | 2,238 | 2,330 | 2,220 |
| MB08 | 2,438 | 2,438 | 2,591 | 2,235 | 2,238 | 2,330 | 720 |
| MB08 ECO | 2,438 | 2,438 | 2,591 | 2,285 | 2,270 | 2,330 | 780 |
| MB05 | 1,400 | 2,438 | 2,591 | 1,200 | 2,238 | 2,330 | 620 |
| MB05 ECO | 1,400 | 2,438 | 2,591 | 1,200 | 2,270 | 2,330 | 650 |
| MB16 | 4,880 | 2,438 | 2,591 | 4,680 | 2,238 | 2,330 | 1,620 |
| MB24 | 7,325 | 2,438 | 2,591 | 7,125 | 2,238 | 2,330 | 2,390 |
| MB30 | 9,125 | 2,438 | 2,591 | 8,925 | 2,238 | 2,330 | 2,890 |
| MB15 | 2,991 | 2,438 | 2,591 | 2,791 | 2,238 | 2,330 | 1,280 |
| MB40 | 12,192 | 2,438 | 2,896 | 12,052 | 12,052 | 2,500 | 5,975 |
















