Nowoczesne Pawilony Biurowe i Budownictwo Modułowe Realizacje Cała Polska
Przestrzeń, która definiuje Twój biznes
Współczesny biznes wymaga rozwiązań, które są równie dynamiczne jak rynek. Tradycyjne metody budowy biur stają się zbyt wolne i mało elastyczne w obliczu zmieniających się potrzeb przedsiębiorstw. Mobilbox, jako lider rynku kontenerowego w Polsce, redefiniuje pojęcie przestrzeni biurowej, oferując pawilony biurowe klasy premium, które łączą w sobie estetykę nowoczesnej architektury z mobilnością i szybkością systemów modułowych. Nasze rozwiązania to nie kompromis – to strategiczna przewaga.
Oferujemy kompleksowe realizacje obiektów biurowych opartych na technologii lekkiej zabudowy modułowej. Od pojedynczych, eleganckich biur sprzedaży dla deweloperów, po wielokondygnacyjne kompleksy administracyjne dla zakładów przemysłowych i placów budowy. Dzięki zastosowaniu zaawansowanych materiałów izolacyjnych i nowoczesnych elewacji, nasze pawilony gwarantują komfort pracy porównywalny z tradycyjnym budownictwem, przy zachowaniu pełnej mobilności aktywów.
Dlaczego Inwestorzy z Warszawy, Wrocławia, Gdańska i całej Polski wybierają Mobilbox?
Dostarczamy więcej niż kontenery. Dostarczamy funkcjonalną infrastrukturę biznesową. Nasze przewagi to:
Szybkość realizacji
Gotowe biuro „pod klucz” w zaledwie kilka tygodni od zamówienia.
Skalowalność
Możliwość rozbudowy obiektu w dowolnym momencie poprzez dołączanie kolejnych modułów lub ich piętrowanie do 3 kondygnacji.
Design Premium
Duże przeszklenia (witryny), reprezentacyjne elewacje z płyt kompozytowych lub drewna, ukryte orynnowanie.
Elastyczność Finansowa
Atrakcyjne modele wynajmu, leasingu oraz sprzedaży, dopasowane do cyklu życia Twojego projektu.
Zastosowania Pawilonów Modułowych – Rozwiązania Dedykowane
Zrozumienie specyfiki Twojej branży jest kluczem do zaprojektowania idealnego biura. Nasze systemy modułowe znajdują zastosowanie w najbardziej wymagających sektorach gospodarki.
Biura Sprzedaży Mieszkań i Showroomy Deweloperskie
W branży nieruchomości pierwsze wrażenie jest bezcenne. Biuro sprzedaży to wizytówka inwestycji. Oferujemy pawilony o podwyższonym standardzie estetycznym, wyposażone w pełne przeszklenia frontowe, które doskonale eksponują makiety i wnętrze biura. Możliwość brandingu elewacji oraz instalacji klimatyzacji kanałowej sprawia, że klienci czują się komfortowo i prestiżowo. Co ważne, po zakończeniu sprzedaży, biuro można łatwo przenieść na kolejną inwestycję, co czyni je aktywem wielokrotnego użytku.
Wielkopowierzchniowe Zaplecza Budowy i Biura Inżynierskie
Zarządzanie dużą inwestycją budowlaną wymaga profesjonalnego zaplecza. Mobilbox specjalizuje się w tworzeniu zintegrowanych miasteczek kontenerowych. Łączymy moduły biurowe (MB20 H) z kontenerami sanitarnymi (MB26) i korytarzowymi (MB16, MB24), tworząc funkcjonalne układy Open Space dla działów projektowych oraz wydzielone gabinety dla kadry zarządzającej.16 Dzięki solidnej ramie stalowej nasze obiekty są odporne na trudne warunki panujące na budowie i zapewniają bezpieczeństwo pracowników.
Tymczasowe i Stałe Siedziby Firm (Office Expansion)
Gdy Twoja firma rośnie szybciej niż przewidywano, rozbudowa tradycyjnego biura bywa niemożliwa lub zbyt kosztowna. Moduły biurowe Mobilbox to idealne rozwiązanie na „office expansion”. Możemy dostawić pawilon do istniejącego budynku lub stworzyć niezależny hub biurowy na wolnym terenie. Dzięki estetycznemu wykończeniu wnętrz (panele ścienne, sufity podwieszane, wykładziny obiektowe), standard pracy nie odbiega od biur klasy A.
Rodzaje pawilonów biurowych
Pawilon Biurowy 14 m² OPEN SPACE
Pawilon Biurowy KUCHNIA ŁAZIENKA
Pawilon Biurowy z ANEKSEM KUCHENNYM i WC
Pawilon Biurowy DUO OPEN SPACE
Pawilon Biurowy DUO KUCHNIA ŁAZIENKA
Specyfikacja Techniczna i Technologie – Inżynieria Komfortu
Nasze pawilony biurowe to zaawansowane konstrukcje inżynierskie. Każdy element, od ramy po izolację, został zaprojektowany z myślą o trwałości, energooszczędności i komforcie użytkowania. Poniższa tabela przedstawia kluczowe parametry naszych najpopularniejszych rozwiązań.
| Parametr Techniczny | Standard Basic (Kontener Biurowy) | Standard Premium (Pawilon Biurowy) | Korzyść Biznesowa |
| Konstrukcja Nośna | Spawana rama stalowa z profili zimnogiętych | Wzmocniona rama stalowa przystosowana do dużych przeszkleń | Możliwość piętrowania do 3 kondygnacji, bezpieczeństwo statyczne. |
| Izolacja Ścian | Płyta warstwowa styropian/wełna) 100mm | Płyta warstwowa z rdzeniem PIR/Wełna min. (U=0,20 W/m²K) | Redukcja kosztów ogrzewania i chłodzenia. |
| Stolarka Okienna | Okna PVC standardowe (uchylno-rozwierne) | Witryny aluminiowe, pakiety 3-szybowe, szkło bezpieczne | Nowoczesny wygląd, lepsze doświetlenie, izolacja akustyczna. |
| Wymiary Modułów | ISO 20ft (6058 x 2438 mm) | Moduły powiększone (np. 3000mm szerokości), łączone bezścianowo | Elastyczność aranżacji Open Space, większa przestrzeń użytkowa. |
| Podłoga | Płyta wiórowa/cementowa + wykładzina PVC | Wylewka betonowa lub płyta wzmocniona + panele/wykładzina obiektowa | Wytrzymałość na duże natężenie ruchu, estetyka biurowa. |
| Wyposażenie Dodatkowe | Grzejnik elektryczny, oświetlenie jarzeniowe | Klimatyzacja Split/Multi-split, rekuperacja, oświetlenie LED, sieć IT | Pełna autonomia budynku, komfort termiczny przez cały rok. |
Energooszczędność i Ekologia
W dobie rosnących cen energii, kluczowym aspektem jest izolacyjność termiczna. W naszych pawilonach stosujemy płyty warstwowe o niskim współczynniku przenikania ciepła, co w połączeniu z nowoczesną stolarką okienną i opcjonalną rekuperacją, czyni je obiektami energooszczędnymi. Jest to szczególnie istotne przy wynajmie długoterminowym, gdzie koszty eksploatacyjne stanowią znaczącą pozycję w budżecie (TCO). Ponadto, budownictwo modułowe generuje znacznie mniej odpadów na placu budowy niż metody tradycyjne, wpisując się w strategie zrównoważonego rozwoju (ESG) dużych korporacji.19
Jesteś zainteresowany kupnem kontenerów?
Skontaktuj się z nami
Profesjonalni doradcy czekają na Ciebie: Warszawa, Łódź, Wrocław, Gdańsk, Kraków, Poznań, Rzeszów, Katowice, Szczecin, Dębica, Starachowice, Kielce, Białystok, Toruń, Dębica, Płock, Bydgoszcz, Zielona Góra, Suwałki, Lublin
Aspekty Prawne i Formalności – Pozwolenie na Budowę a Pawilon
Jako eksperci w branży, wspieramy naszych klientów nie tylko w dostawie produktu, ale także w nawigacji po przepisach Prawa Budowlanego. Częstym pytaniem inwestorów jest: „Czy na postawienie pawilonu biurowego potrzebuję pozwolenia?„
Zgodnie z aktualnymi przepisami (2025), sytuacja wygląda następująco:
01
Obiekty Tymczasowe (do 180 dni)
Pawilony biurowe, które nie są trwale związane z gruntem, mogą być użytkowane na podstawie zgłoszenia przez okres do 180 dni. Jest to idealne rozwiązanie dla biur sprzedaży sezonowej lub krótkoterminowych projektów.
02
Obiekty Tymczasowe (do 180 dni)
Pawilony biurowe, które nie są trwale związane z gruntem, mogą być użytkowane na podstawie zgłoszenia przez okres do 180 dni. Jest to idealne rozwiązanie dla biur sprzedaży sezonowej lub krótkoterminowych projektów.
03
Obiekty Stałe (powyżej 180 dni)
Jeśli planujesz użytkować pawilon jako stałą siedzibę, konieczne będzie uzyskanie pozwolenia na budowę. Mobilbox dostarcza pełną dokumentację techniczną (projekt konstrukcyjny), która jest niezbędna do złożenia wniosku. Warto pamiętać, że obiekty podłączone do mediów i użytkowane długoterminowo są traktowane przez orzecznictwo jako budynki wymagające pełnej procedury administracyjnej. Nasz zespół doradza, jak sprawnie przejść ten proces.
Finansowanie Inwestycji – Wynajem czy Leasing?
Elastyczność to drugie imię budownictwa modułowego. Oferujemy różne modele finansowania dostosowane do Twojego modelu biznesowego.
Wynajem Krótko- i Długoterminowy
Najlepsza opcja dla firm, które potrzebują biura „tu i teraz”, bez angażowania dużego kapitału inwestycyjnego (CAPEX). Wynajem to koszt operacyjny (OPEX), który łatwo ująć w budżecie projektu. Posiadamy flotę tysięcy kontenerów gotowych do transportu.
Leasing Operacyjny i Finansowy
Dla firm planujących dłuższą eksploatację, współpracujemy z czołowymi firmami leasingowymi w Polsce. Pawilon biurowy (jako środek trwały z grupy 8 KŚT lub 6 KŚT w zależności od klasyfikacji) może być przedmiotem leasingu, co pozwala na optymalizację podatkową i rozłożenie płatności w czasie.
Sprzedaż i Odkup
Oferujemy możliwość zakupu nowych oraz używanych modułów. Co więcej, po zakończeniu inwestycji, często oferujemy opcję odkupu kontenerów (Buy-Back), co dodatkowo obniża ostateczny koszt inwestycji dla klienta.
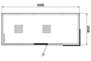
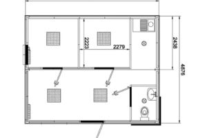
Wymiary pawilonu biurowego
PAWILON BIUROWY z jednego kontenera: szer. 2438 mm x dł. 6058 mm x wys. 2800 mm; wys. wew. 2500 mm.
PAWILON BIUROWY z dwóch kontenerów: szer. 4876 mm x dł. 6058 mm x wys. 2800 mm; wys. wew.2500 mm.
DODATKOWE WYKOŃCZENIE I WYPOSAŻENIE PAWILONU BIUROWEGO: attyka dekoracyjna, drewno dekoracyjne, panele podłogowe, dodatkowy panel witrynowy, klimatyzator – mocy 2,6 kW lub 3,6kW, dowolna konfiguracja okien i drzwi
Zapraszamy do oddziałów Mobilbox
Potrzebujesz kontenera?
Mamy je od ręki!
Nowe i używane – sprawdź zdjęcia, poznaj ceny
i wybierz idealny dla siebie.
Bez czekania, bez pośredników.
NAPISZ DO NAS Bezpłatna wycena usługi
Aby poznać cenę kontenera oraz wysokość opłat dodatkowych, proszę wypełnić nasze zapytanie ofertowe!
Usługi kontenerowe
- wynajem kontenerów
- sprzedaż kontenerów
- leasing kontenerów
- doradztwo inwestycyjne
- projektowanie kontenerów
- producent kontenerów
- posadowienie kontenerów dźwigiem HDS
- montaż kontenerów i budynków modułowych
- serwis i montaż kontenerów
- transport i logistyka kontenerów
- naprawa i konserwacja kontenerów
- obsługa indywidualnych zamówień
- części do kontenerów morskich i magazynowych
- sprzedaż plomb do kontenerów
Przeznaczenie kontenerów
- biuro budowy
- szatnia pracownicza
- pomieszczenia socjalne
- zaplecza budowlane
- jadalnia i stołówka pracownicza
- zakwaterowanie pracowników
- ogrzewalnie z kontenerów
- zaplecze budowy
- kasa biletowa
- podręczny magazyn, garaż
- wynajem RTV i AGD
- wynajem regałów do kontenera
- kontener mieszkalny
- kontenery na dokumenty
- zbiorniki szamba na ścieki i fekalia
- wynajem mebli do kontenerów
Rodzaje kontenerów
- pawilon handlowy
- sala konferencyjna
- obiekt usługowy
- portiernia, budka strażnika, mistrzówka, wartownia
- warsztat z kontenera
- schronisko dla bezdomnych
- przedszkola i szkoły modułowe
- tymczasowe dworce
- zaplecza sportowe
- archiwum na dokumenty
- obiekt gastronomiczny kawiarnia
- sanitariaty i umywalnie dla pracowników
- kontenery na eventy
- obiekty dla uchodźców



























