KONTENERY SZATNIOWE KONTENER SZATNIA SPRZEDAŻ
Sprzedaż kontenerów szatniowych MOBILBOX
Kontenery szatniowe od Mobilbox to idealny wybór, jeśli potrzebują Państwo takiego biura, które umożliwia elastyczne przystosowanie do rozmaitych oczekiwań, a przy tym może być szybko i łatwo skonstruowane. Dobrym wyborem może się też okazać w przypadku, gdy pozwolenie na budowę wymaga zachodu. Kontener biurowy jest tanim i szybkim rozwiązaniem!
Kontenery szatniowe na sprzedaż
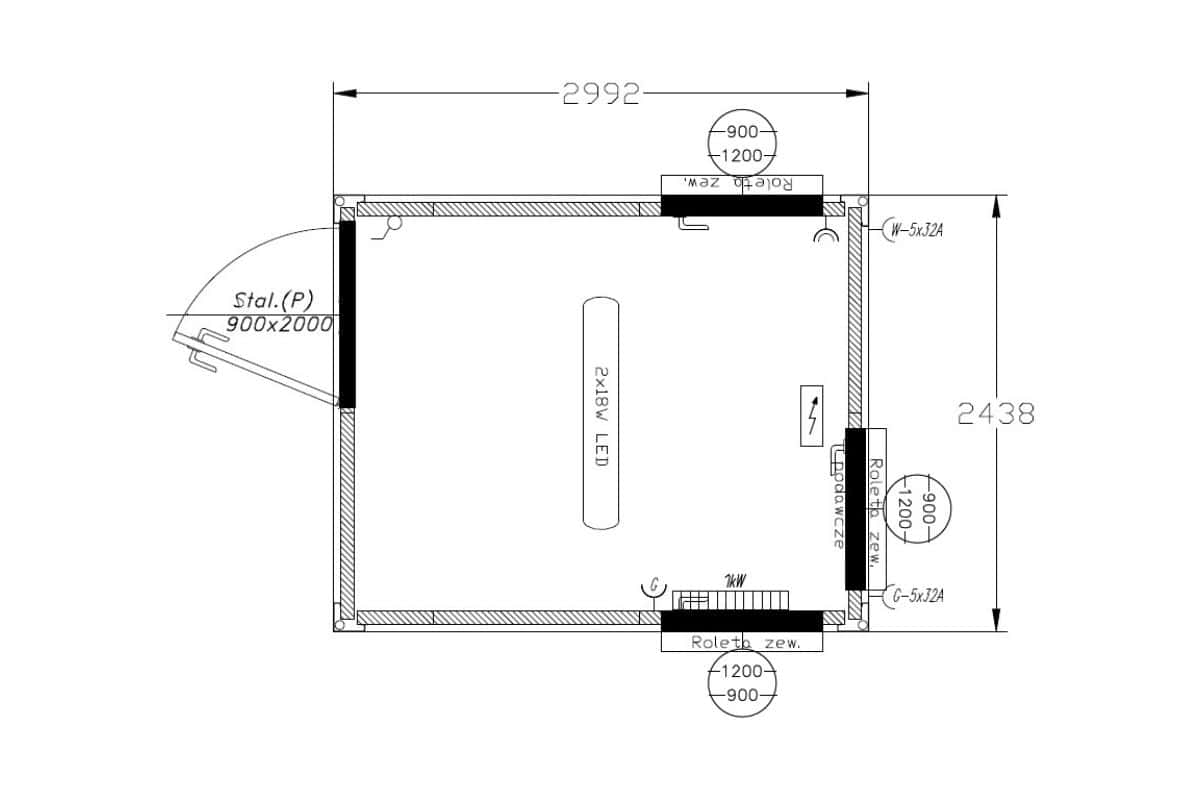
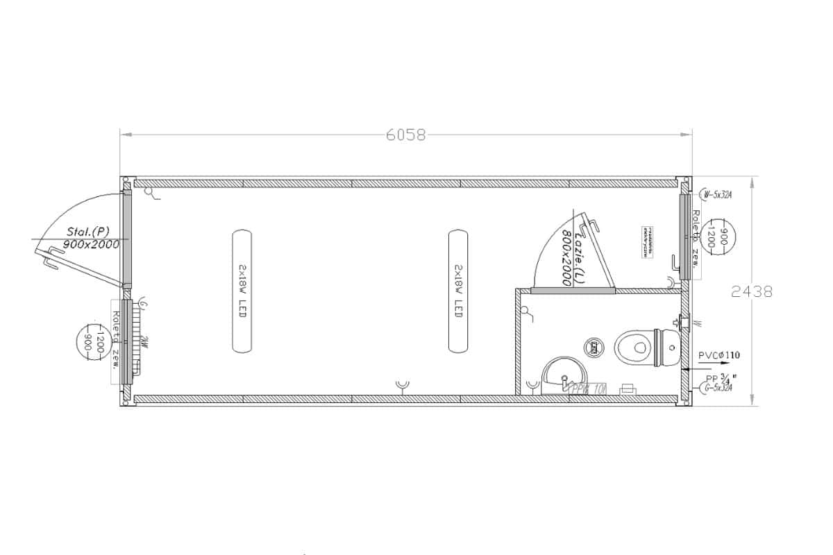
Kontenery szatniowe są jako pojedyncze jednostki modułowe oparte na ramie stalowej, najczęściej o tych samych, powtarzalnych wymiarach kontenera dwudziestostopowego o długości 6058 mm i szerokości 2 438 mm.
Kontenery szatniowe, mobilne szatnie są również potocznie określane jako szatnie pracownicze – ze względu na uniwersalne zastosowanie na inwestycjach budowlanych oraz jako kontenery socjalne – użytkowane jako jadalnia dla pracowników czy schronienie w miejscu prowadzonych dowolnych prac.
Kontenery szatniowe są bezpieczne i estetyczne w użytkowaniu. Podstawowym wyposażeniem kontenera są instalacje: elektryczna i oświetleniowa. Na podłodze szara „ukrywająca” zabrudzenia wykładzina oraz białe okno rozwieralno-uchylne PCV. Tak wyposażony kontener to gotowa do aranżacji przestrzeń socjalna, łatwa w modyfikacji powierzchnia użytkowa poprzez montaż i demontaż ścian zewnętrznych i wewnętrznych.
Sprzedaż kontenera szatniowego to praktyczna i najszybsza forma rozwiązywania wszelkiego deficytu powierzchni biurowych i lokalowych. Dzięki konstrukcji kontenera umożliwiająca posadowienie i montaż kontenera biurowego niemal w dowolnym otoczeniu, zapewniając komfortowe biuro pod wszelką działalność gospodarczą i administracyjną.
Jesteś zainteresowany kupnem kontenerów?
Skontaktuj się z nami
Profesjonalni doradcy czekają na Ciebie: Warszawa, Łódź, Wrocław, Gdańsk, Kraków, Poznań, Rzeszów, Katowice, Szczecin, Dębica, Starachowice, Kielce, Białystok, Toruń, Dębica, Płock, Bydgoszcz, Zielona Góra, Suwałki, Lublin
Jaka jest cena wynajmu kontenera szatniowego?
Cena wynajmu kontenera uzależniona jest od kilku czynników. Do najważniejszych należą:
- forma współpracy tzn. czy została wcześniej podpisana umowa ramowa z podmiotem gospodarczym. Umowa zawiera ceny wynajmu kontenerów innych typów oraz warunki współpracy.
- ilości kontenerów tzn. czy oferta przeznaczona jest na wynajem jednego kontenera, kilku kontenerów czy obiektu modułowego z kontenerów.
- okres wynajmu kontenera tzn. na jaki czas moduł lub budynek modułowy będzie wynajęty.
Co po wygaśnięciu umowy wynajmu kontenera szatniowego?
Umowa wynajmu kontenera szatniowego może zostać przedłużona na dowolny, oczekiwany przez najemcę okres czasu lub kontener podlega zwrotowi do lokalnego oddziału Mobilbox Polska. Proces pełnej logistyki tj. demontaż obiektu kontenerowego i jego transport zapewniamy w ramach prowadzonych usług serwisowych.
Termin odbioru ustalany jest z naszym przedstawicielem regionalnym. Kontakt do naszych przedstawicieli znajdziecie Państwo pod linkami do adresów naszych oddziałów: Wynajem kontenerów szatniowych
Wyposażenie kontenera szatniowego na sprzedaż
Zapewnienie komfortu pracy naszym klientom to jeden z naszych priorytetów. Oferta wyposażenia kontenerów szatniowych to oszczędność czasu i pewność dostarczenia pracownikom bezpiecznego wyposażenia. Do kontenerów szatniowych polecamy szafki BHP / szafy na ubrania na wynajem oraz ławkę z wieszakami, stół mały i stół duży i krzesła Plastikowe. Dodatkowo w przypadku bardziej rozwiniętej przestrzeni socjalnej możemy ją doposażyć na zasadach wynajmu w krzesła obrotowe, fotele obrotowe, krzesła plastikowe, tablicę suchościeralną, informacyjną tablicę korkową, szafę na dokumenty, ławki z wieszakami, kontenery pod biurko, kosz na śmieci, wieszak na ubrania, meble kuchenne, zlew kuchenny, lodówkę , zmywarkę, czajnik elektryczny, ekspres do kawy, kuchenka mikrofalowa, klimatyzatory o różnej mocy, oczyszczacz powietrza, łóżko, grzejnik elektryczny, telewizor, gaśnice i regały magazynowe.
Potrzebujesz kontenera?
Mamy je od ręki!
Nowe i używane – sprawdź zdjęcia, poznaj ceny
i wybierz idealny dla siebie.
Bez czekania, bez pośredników.
Sprzedaż kontenerów szatniowych – wymiary kontenerów szatniowych
KONTENER SZATNIOWY 20H
KONSTRUKCJA KONTENERA: stalowa, spawana rama podłogi, stropodachu oraz słupy usytuowane w narożach kontenera. Elementy konstrukcji pokryte są powłokami antykorozyjnymi w kolorze czerwonym RAL 3000 – WYNAJEM. Woda deszczowa odprowadzana jest rynnami PCV umieszczonymi wewnątrz słupów narożnych kontenera.
Konstrukcja nośna kontenera w klasie EXC2 wg. normy PN EN 1090-1. Oznakowanie CE.
Elementy spawane zgodnie z PN EN ISO 3834-2.
STROPODACH: blacha ocynkowana gr. 0,55 mm, płyta wiórowa gr. 10 mm, wełna mineralna gr. 100 mm, folia paroizolacyjna, płyta laminowana biała gr. 12 mm. Maksymalne obciążenie stropodachu 100 kg/ m².
ŚCIANY: wykonane są w technologii panelowej: 10 paneli pełnych na długim boku, 4 panele na krótkim (2 okienne,1 drzwiowy, 1 pełny) łącznie 14 wymiennych paneli. Panele najczęściej Są montowane w standardzie : drzwiowy i okienne na krótszych a pełne na dłuższych bokach kontenera.
BUDOWA: stelaż drewniany: blacha lakierowana gr. 0, 55 mm szara RAL 7035 trapez, wełna mineralna gr. 60 mm, folia paroizolacyjna, płyta laminowana biała gr. 12 mm.
PODŁOGA: ocynkowana blacha trapezowa gr. 0,55 mm, wełna mineralna gr. 100 mm, folia paroprzepuszczalna, płyta podłogowa gr. 22 mm, wykładzina PCV gr. min. 2 mm. szara, wykończenie podłogi listwami przypodłogowymi.
Maksymalne obciążenie podłogi 200 kg/m².
OKNA PCV: (RU), 900×1200 mm, białe z roletą zewnętrzna.
DRZWI ZEWNĘTRZNE: białe, jednoskrzydłowe, stalowe, 900×2000 mm.
Tabela wymiarów
| TYP | Wymiary zewnętrzne | Wymiary wewnętrzne | Waga | ||||
| DŁ | SZER | WYS | Dł | SZER | WYS | ||
| MB20H | 6,058 | 2,438 | 2,800 | 5,828 | 2,208 | 2,500 | 2,170 |
| MB10 | 2,992 | 2,438 | 2,800 | 2,726 | 2,208 | 2,500 | 1,130 |
| MB25 | 6,058 | 2,438 | 2,800 | 5,828 | 2,208 | 2,500 | 2,150 |
| MB26 | 6,058 | 2,438 | 2,800 | 5,828 | 2,208 | 2,500 | 2,220 |











