WYNAJEM KONTENERÓW WIELOFUNKCYJNYCH
Wynajem wielofunkcyjnych kontenerów od firmy Mobilbox!
Kontener wielofunkcyjny Mobilbox to zapewniające wszelką wygodę biuro, sanitariat, lub biuro i pomieszczenie magazynowe w jednym. Idealne i wygodne rozwiązanie dla biura nadzorującego budowę lub dla warsztatu.
- Dowolne połączenie tradycyjnego kontenera biurowego zawierającego sanitariaty lub służącego do magazynowania towarów.
- Łączone funkcje biura/magazynu (idealne dla celów łączonych biuro/przebieralnia i serwis/warsztat)
- Biuro/sanitariaty mieszana funkcja (praktyczny, zapewniający wszelkie wygody kontener z sanitariatem, na placu budowy idealny dla biura nadzorującego budowę)
- Oferujemy atrakcyjne warunki zakupu wielofunkcyjnych kontenerów
Jesteś zainteresowany wynajmem kontenerów?
Skontaktuj się z nami
Profesjonalni doradcy czekają na Ciebie: Warszawa, Łódź, Wrocław, Gdańsk, Kraków, Poznań, Rzeszów, Katowice, Szczecin, Dębica, Starachowice, Kielce, Białystok, Toruń, Dębica, Płock, Bydgoszcz, Zielona Góra, Suwałki, Lublin
Dlaczego warto wynająć kontener wielofunkcyjny od firmy Mobilbox?
- Szybka oferta.
- Elastyczne podejście do potrzeb klientów.
- Indywidualne konstrukcje płatnicze.
Kto powinien rozważyć wynajęcie wielofunkcyjnych kontenerów od Mobilbox?
- Ten, kto życzy sobie biura i sanitariatów lub biura i magazynu w ramach jednego kontenera.
- Ten, kto życzy sobie kompaktowego rozwiązania na małej powierzchni.
- Ten, kto chciałby oszczędzić na kosztach transportu.
Kontener wielofunkcyjny wynajem:
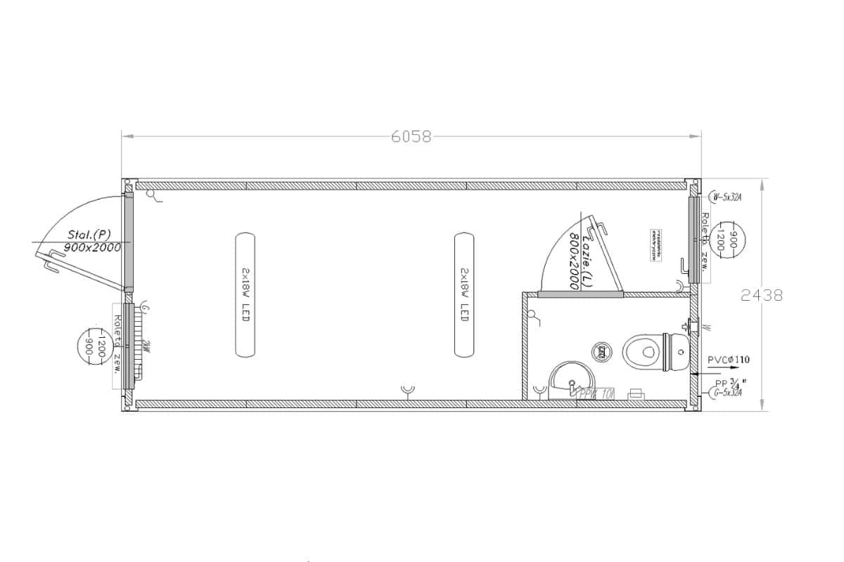
Wynajem kontenerów wielofunkcyjnych – cechy charakterystyczne i wymiary
Tabela wymiarów
| TYP | Wymiary zewnętrzne | Wymiary wewnętrzne | Waga | ||||
| DŁ | SZER | WYS | Dł | SZER | WYS | ||
| MB25 | 6,058 | 2,438 | 2,591 | 5.858 | 2.238 | 2.330 | 2,150 |
| MB26 | 6,058 | 2,438 | 2,591 | 5.858 | 2.238 | 2.330 | 2,220 |
| MO20 | 6,058 | 2,438 | 2,591 | 5.858 | 2.238 | 2.330 | 2,400 |
NAPISZ DO NAS
Usługi kontenerowe
- wynajem kontenerów
- sprzedaż kontenerów
- leasing kontenerów
- doradztwo inwestycyjne
- projektowanie kontenerów
- producent kontenerów
- posadowienie kontenerów dźwigiem HDS
- montaż kontenerów i budynków modułowych
- serwis i montaż kontenerów
- transport i logistyka kontenerów
- naprawa i konserwacja kontenerów
- obsługa indywidualnych zamówień
- części do kontenerów morskich i magazynowych
- sprzedaż plomb do kontenerów
Przeznaczenie kontenerów
- biuro budowy
- szatnia pracownicza
- pomieszczenia socjalne
- zaplecza budowlane
- jadalnia i stołówka pracownicza
- zakwaterowanie pracowników
- ogrzewalnie z kontenerów
- zaplecze budowy
- kasa biletowa
- podręczny magazyn, garaż
- wynajem RTV i AGD
- wynajem regałów do kontenera
- kontener mieszkalny
- kontenery na dokumenty
- zbiorniki szamba na ścieki i fekalia
- wynajem mebli do kontenerów
Rodzaje kontenerów
- pawilon handlowy
- sala konferencyjna
- obiekt usługowy
- portiernia, budka strażnika, mistrzówka, wartownia
- warsztat z kontenera
- schronisko dla bezdomnych
- przedszkola i szkoły modułowe
- tymczasowe dworce
- zaplecza sportowe
- archiwum na dokumenty
- obiekt gastronomiczny kawiarnia
- sanitariaty i umywalnie dla pracowników
- kontenery na eventy
- obiekty dla uchodźców









