KONTENER BUDOWLANY Z TOALETĄ Podstawowy kontener socjalno - biurowy MB 25
KONTENER BUDOWLANY Z TOALETĄ I UMYWALKĄ MB25
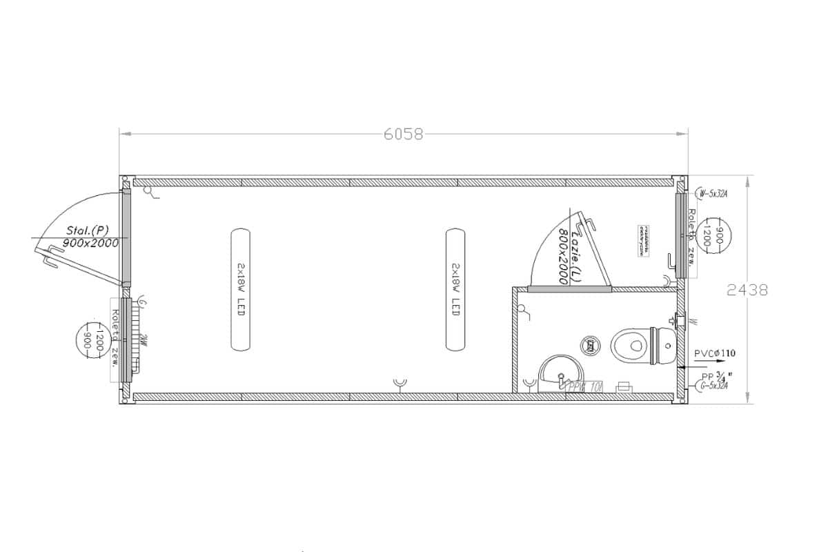
SPECYFIKACJA TECHNICZNA
KONSTRUKCJA: stalowa, spawana rama podłogi, stropodachu oraz stupy usytuowane w narożach modułu. Elementy konstrukcji pokryte są powłokami antykorozyjnymi w kolorze czerwonym RAL 3000-WYNAJEM lub w dowolnym kolorze-SPRZEDAŻ. Woda deszczowa odprowadzana jest rynnami PCV umieszczonymi wewnątrz słupów narożnych kontenera. Konstrukcja nośna kontenera w klasie EXC2 wg normy PN EN 1090-1. Oznakowanie CE. Elementy spawane zgodnie z PN EN ISO 3834-2.
STROPODACH: blacha ocynkowana gr. 0,55 mm, płyta wiórowa gr. 10 mm, wełna mineralna gr. 100 mm, folia paroizolacyjna , płyta laminowana biała gr. 12 mm. Nośność stropodachu 100 kg/m².
ŚCIANY ZEWNĘTRZNE: stelaż drewniany: blacha lakierowana gr. 0, 55 mm szara RAL 7035 trapez, wełna mineralna gr. 60 mm, folia paroizolacyjna , płyta laminowana biała gr. 12 mm.
ŚCIANY WEWNĘTRZNE: płyta laminowana biała gr. 12 mm, stelaż drewniany, płyta laminowana biała gr. 12 mm
PODŁOGA: ocynkowana blacha trapezowa gr. 0,55 mm, wełna mineralna gr. 100 mm, folia paroprzepuszczalna, płyta podłogowa gr. 22 mm, wykładzina PCV gr. min. 2 mm. szara, wykończenie podłogi listwami przypodłogowymi. Maksymalne obciążenie podłogi 200 kg/ m².
OKNA PCV: (RU), 900×1200 mm, białe z roletą zewnętrzną.
DRZWI:
- zew. jednoskrzydłowe, białe, stal owe, 900×2000 mm,
- wew. jednoskrzydłowe, białe łazienkowe 800×2000 mm.
INSTALACJA ELEKTRYCZNA PODTYNKOWA:
- przyłącze instalacji na bazie gniazda i wtyku sitowego 5x32A,
- instalacja oświetleniowa -2 x 16W LED, świetlówka, plafon.
- instalacja gniazd wtykowych- gniazdka, włącznik
INSTALACJA GRZEWCZA: grzejnik elektryczny 2000 W.
INSTALACJA WENTYLACYJNA: wentylator elektryczny 150m 3/ h.
INSTALACJA WODNO-KANALIZACYJNA NATYNKOWA: wyjście wod-kan w ścianie kontenera: instalacja wodna wykonana z rur PP, instalacja kanalizacyjna wykonana z rur PCV.
ŁAZIENKA: muszla toaletowa , umywalka, przepływowy podgrzewacz wody, lustro z półką, uchwyt na papier toaletowy
KONTENER BIUROWY: Warszawa, Łódź, Wrocław, Gdańsk, Kraków, Poznań, Rzeszów, Katowice, Szczecin, Dębica, Ostrowiec Świętokrzyski, Kielce, Białystok, Toruń
Kontenery biurowe – wymiary i cechy charakterystyczne
Kontenery biurowy, Kontenery biurowe – realizacje
NAPISZ DO NAS
Usługi kontenerowe
- wynajem kontenerów
- sprzedaż kontenerów
- leasing kontenerów
- doradztwo inwestycyjne
- projektowanie kontenerów
- producent kontenerów
- posadowienie kontenerów dźwigiem HDS
- montaż kontenerów i budynków modułowych
- serwis i montaż kontenerów
- transport i logistyka kontenerów
- naprawa i konserwacja kontenerów
- obsługa indywidualnych zamówień
- części do kontenerów morskich i magazynowych
- sprzedaż plomb do kontenerów
Przeznaczenie kontenerów
- biuro budowy
- szatnia pracownicza
- pomieszczenia socjalne
- zaplecza budowlane
- jadalnia i stołówka pracownicza
- zakwaterowanie pracowników
- ogrzewalnie z kontenerów
- zaplecze budowy
- kasa biletowa
- podręczny magazyn, garaż
- wynajem RTV i AGD
- wynajem regałów do kontenera
- kontener mieszkalny
- kontenery na dokumenty
- zbiorniki szamba na ścieki i fekalia
- wynajem mebli do kontenerów
Rodzaje kontenerów
- pawilon handlowy
- sala konferencyjna
- obiekt usługowy
- portiernia, budka strażnika, mistrzówka, wartownia
- warsztat z kontenera
- schronisko dla bezdomnych
- przedszkola i szkoły modułowe
- tymczasowe dworce
- zaplecza sportowe
- archiwum na dokumenty
- obiekt gastronomiczny kawiarnia
- sanitariaty i umywalnie dla pracowników
- kontenery na eventy
- obiekty dla uchodźców






