WYNAJEM KONTENERÓW SANITARNYCH
Kontenery sanitarne wynajem
Zaawansowane i elastyczne rozwiązania w zakresie wynajmu kontenerów sanitarnych
W dzisiejszym dynamicznym środowisku, organizacje, wydarzenia oraz projekty budowlane często stają przed wyzwaniem zapewnienia odpowiednich warunków sanitarnej higieny na różnych placach i miejscach działalności. Wynajem kontenerów sanitarnych stał się niezastąpionym rozwiązaniem dla tych, którzy potrzebują wygodnego, mobilnego i funkcjonalnego sposobu na zaspokojenie potrzeb higienicznych swoich pracowników, uczestników wydarzeń lub klientów. Mobilbox oferuje kompleksowe usługi wynajmu kontenerów sanitarnych, które dostarczają najwyższą jakość, wygodę i wszechstronność. Nasze kontenery sanitarno-higieniczne są zaprojektowane w taki sposób, aby spełniać wymogi sanitarnych standardów i zapewniać komfort użytkowania w każdych warunkach. Kontenery sanitarne są wyposażone w toalety, umywalki, a także urządzenia do higienicznej obsługi. Dodatkowo, oferujemy różne konfiguracje, rozmiary i wyposażenie opcjonalne, aby dostosować się do indywidualnych potrzeb klienta. Nasze kontenery są wyposażone w systemy zasilania, oświetlenia oraz wentylacji, aby zapewnić pełne funkcjonalności w każdym miejscu i czasie.
Oddziały Mobilbox w Polsce
Jesteś zainteresowany wynajmem kontenerów? Profesjonalni doradcy czekają na Ciebie w całej Polsce. Skontaktuj się z najbliższym oddziałem.
Kontenery sanitarne wynajem
- Kontenery łączące prysznic i WC.
- Kontenery zawierające osobno prysznic oraz osobno WC.
- Dwukabinowy (duo) WC.
- Oferujemy atrakcyjne konstrukcje cenowe przy zakupie kontenerów sanitarnych
Kto powinien rozważyć wynajem kontenera sanitarnego?
- Przedsiębiorcy poszukujący zaplecza sanitarnego na place budów, imprezę masową, event czy kemping czy w turystyce,
- Urzędnicy chcący zainstalować WC lub prysznic w miejscu publicznym .
- Administrator obiektu czy terenu, który chciałby zainstalować sanitariat przy istniejącej infrastrukturze kontenerów mieszkalnych, hali produkcyjnej czy nawet budynku tradycyjnym.
Dlaczego warto wynająć kontener sanitarny od Mobilbox?
- Szybka oferta i profesjonalne doradztwo
- Elastyczne podejście do potrzeb klientów.
- Konkurencyjne ceny i warunki współpracy
Kontenery sanitarne w ofercie wynajmu
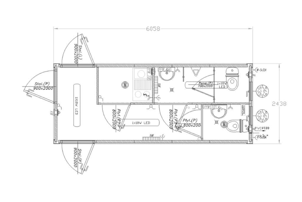
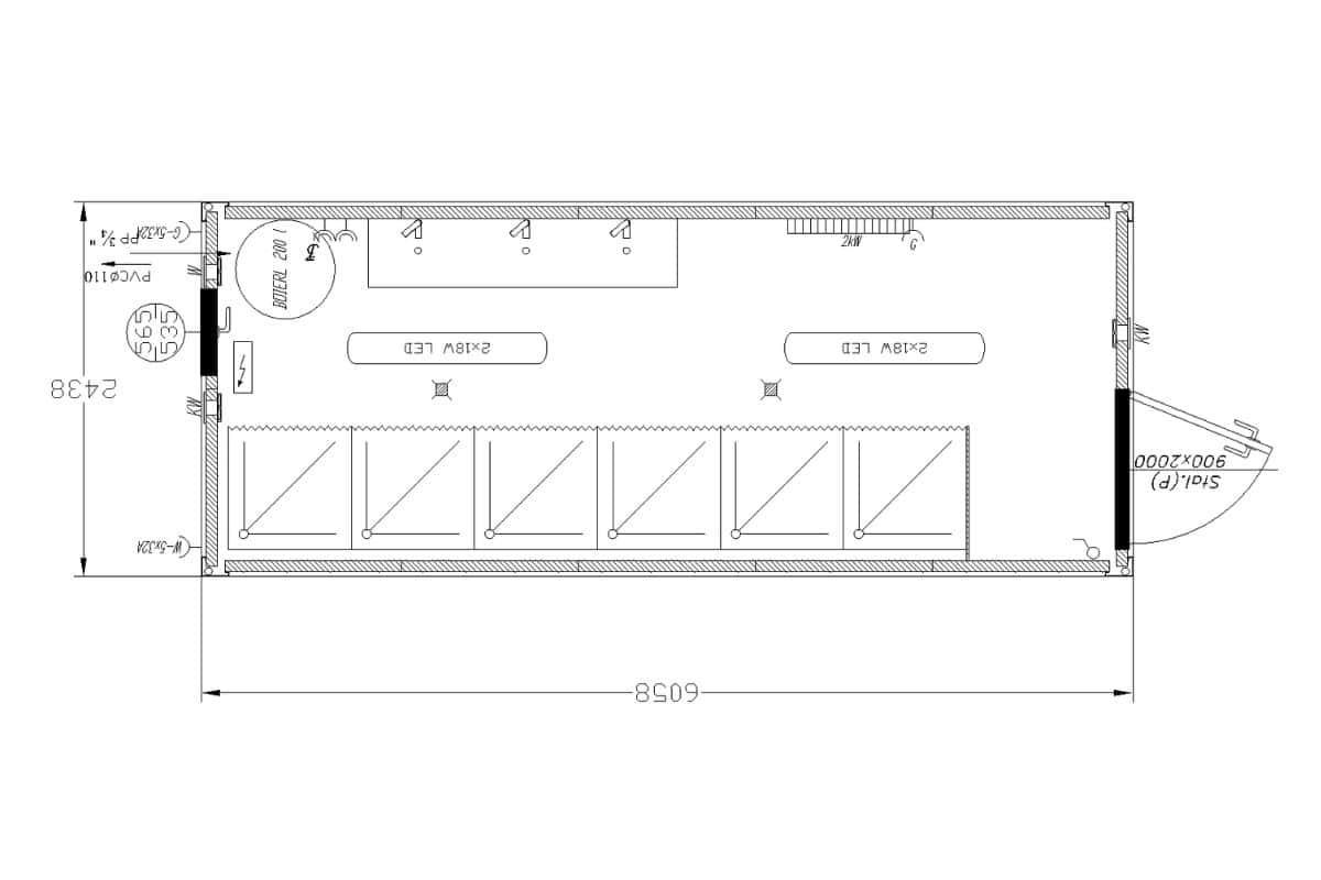
KONTENER SANITARNY MW 20
4 WC + umywalnie
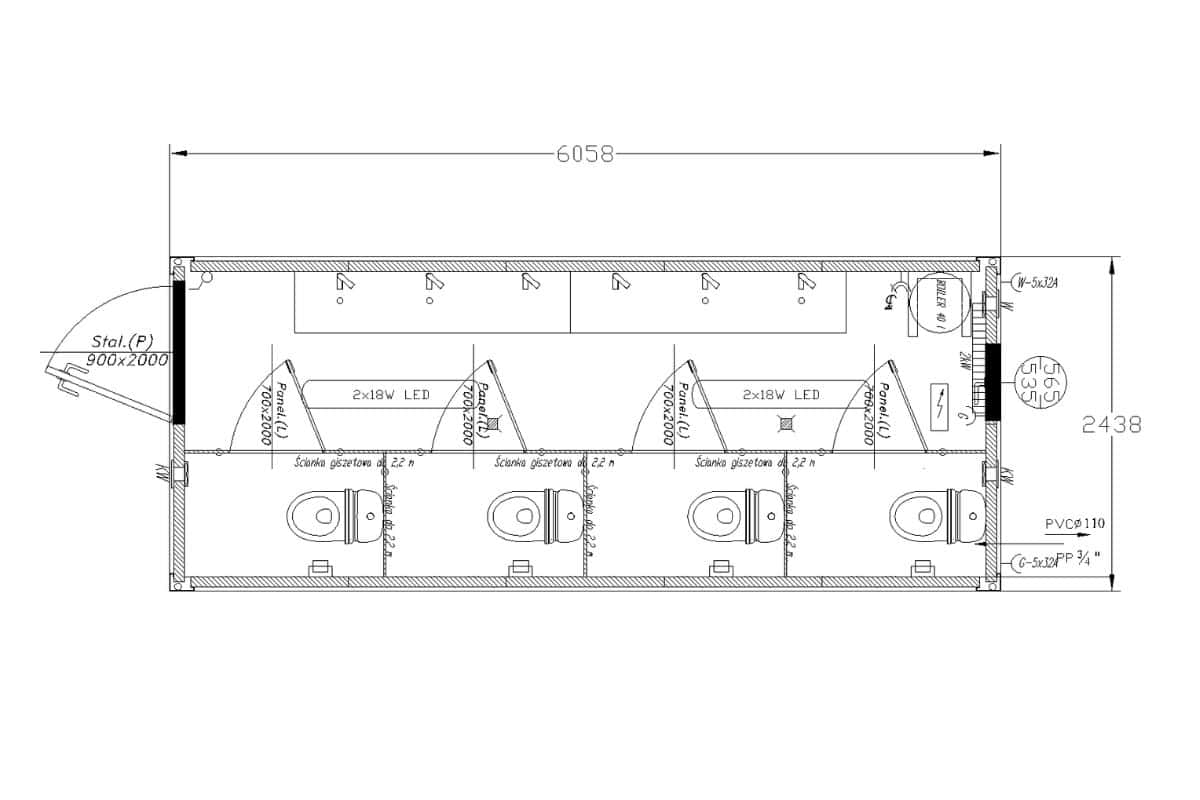
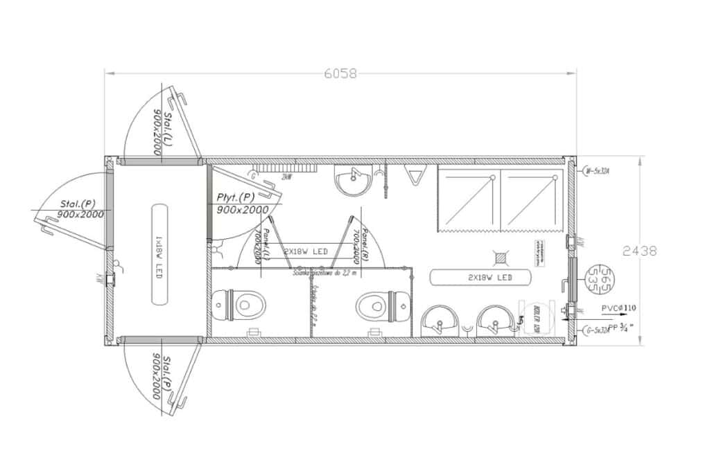
KONTENER SANITARNY MW 23
Podstawowy kontener sanitarny damsko-męski
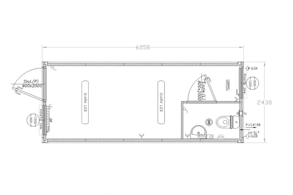
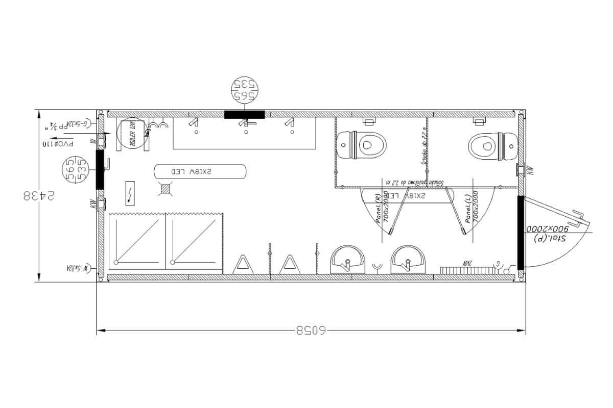
KONTENER SANITARNY MS 20
Podstawowy kontener sanitarny z łazienką
KONTENER SANITARNY MZ 20
Podstawowy kontener sanitarny prysznicowy
KONTENER SANITARNY MS 10
Mały kontener sanitarny z prysznicem
KONTENER SANITARNY MK 20
Podstawowy kontener sanitarny z kuchnią
KONTENER SANITARNY MB 25
Kontener sanitarno – biurowy z kuchnią
KONTENER SANITARNY MB 26
Kontener sanitarno – biurowy z prysznicem i kuchnią
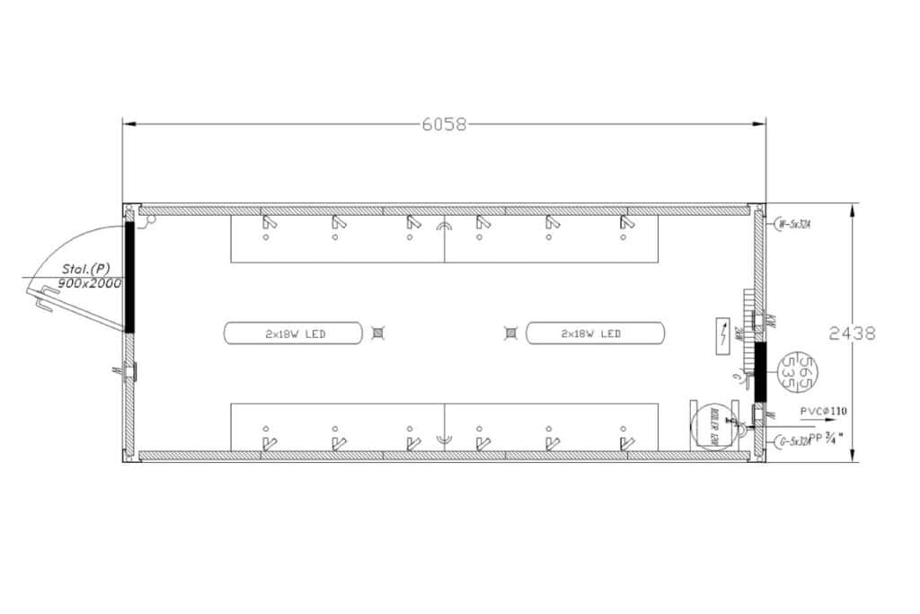
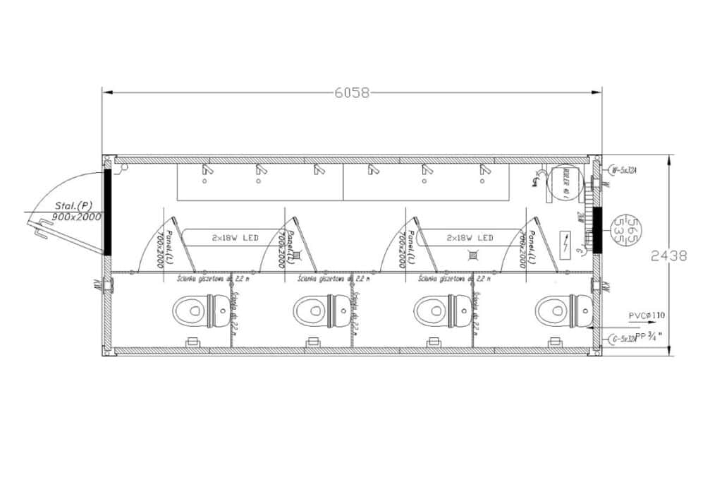
KONTENER SANITARNY MU 20
Umywalnia wielostanowiskowa
KONTENER SANITARNY MS 20K
Kontener sanitarny z prysznicem i umywalką
ZBIORNIK NA FEKALIA MT 20
Zbiornik na ścieki do kontenerów
ZBIORNIK SZAMBO MT 10
Mały zbiornik na ścieki i fekalia
NAPISZ DO NAS
Usługi kontenerowe
- wynajem kontenerów
- sprzedaż kontenerów
- leasing kontenerów
- doradztwo inwestycyjne
- projektowanie kontenerów
- producent kontenerów
- posadowienie kontenerów dźwigiem HDS
- montaż kontenerów i budynków modułowych
- serwis i montaż kontenerów
- transport i logistyka kontenerów
- naprawa i konserwacja kontenerów
- obsługa indywidualnych zamówień
- części do kontenerów morskich i magazynowych
- sprzedaż plomb do kontenerów
Przeznaczenie kontenerów
- biuro budowy
- szatnia pracownicza
- pomieszczenia socjalne
- zaplecza budowlane
- jadalnia i stołówka pracownicza
- zakwaterowanie pracowników
- ogrzewalnie z kontenerów
- zaplecze budowy
- kasa biletowa
- podręczny magazyn, garaż
- wynajem RTV i AGD
- wynajem regałów do kontenera
- kontener mieszkalny
- kontenery na dokumenty
- zbiorniki szamba na ścieki i fekalia
- wynajem mebli do kontenerów
Rodzaje kontenerów
- pawilon handlowy
- sala konferencyjna
- obiekt usługowy
- portiernia, budka strażnika, mistrzówka, wartownia
- warsztat z kontenera
- schronisko dla bezdomnych
- przedszkola i szkoły modułowe
- tymczasowe dworce
- zaplecza sportowe
- archiwum na dokumenty
- obiekt gastronomiczny kawiarnia
- sanitariaty i umywalnie dla pracowników
- kontenery na eventy
- obiekty dla uchodźców




