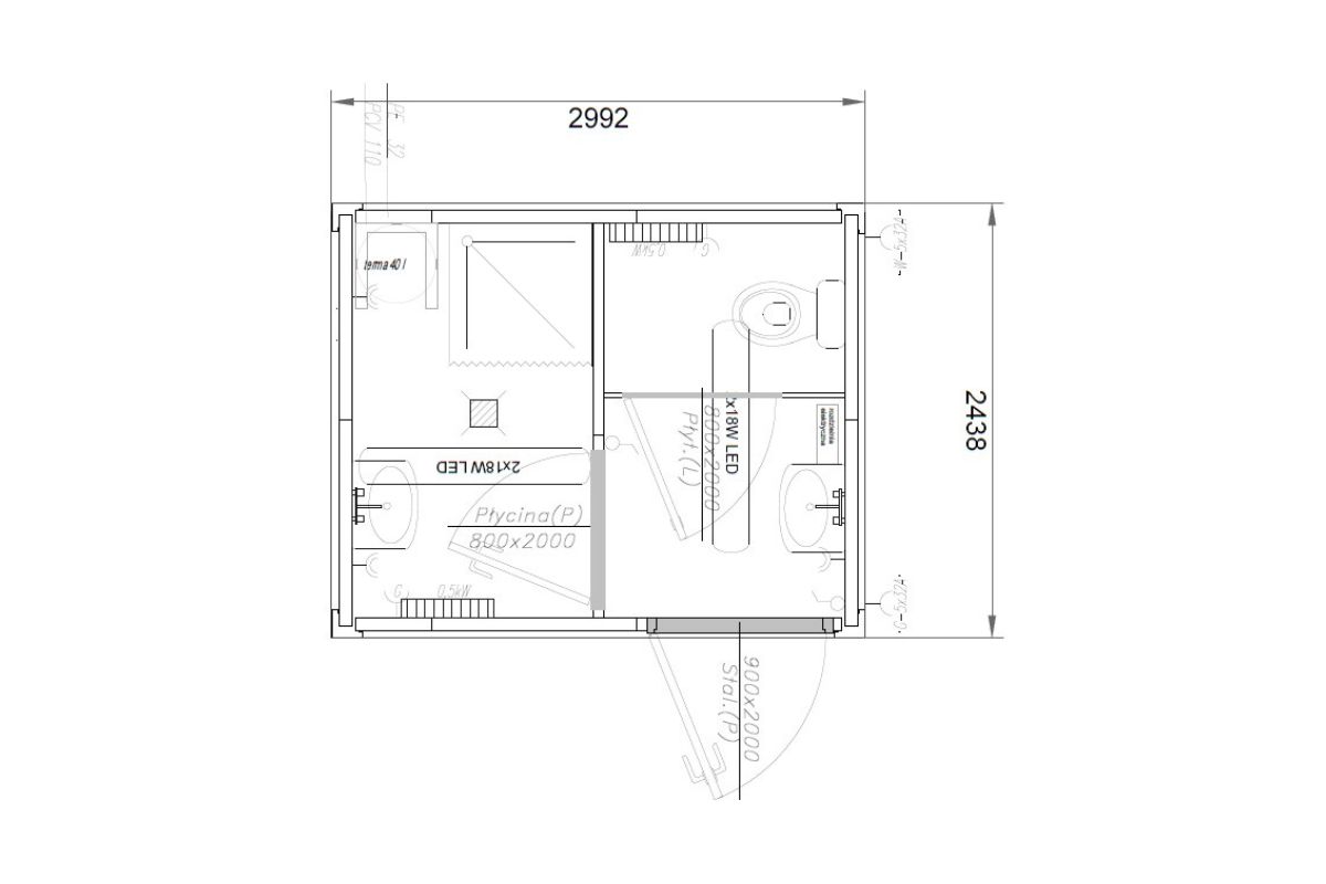
KONTENER SANITARNY WC PRYSZNIC Mały kontener sanitarny z WC i prysznicem MS 10
Mały Kontener sanitarny pełny węzeł sanitarny – prysznic, WC, pisuar, umywalka – MS 10
To praktyczne, kompaktowe pomieszczenie sanitarne zaprojektowane z myślą o intensywnym użytkowaniu. Wyposażone w pełną instalację wodno-kanalizacyjną oraz elektryczną, gwarantuje wygodę i niezawodność na co dzień. Dzięki mobilnej konstrukcji można je łatwo transportować i ustawiać w różnych lokalizacjach. Kontener sprawdza się zarówno na placach budowy, w obiektach tymczasowych, jak i podczas imprez plenerowych. Może być także wykorzystany jako sanitariat do szybkiego montażu wewnątrz hal produkcyjnych lub logistycznych. Trwałe materiały ułatwiają utrzymanie higieny i czystości, czyniąc go funkcjonalnym i ekonomicznym rozwiązaniem dla firm oraz organizatorów wydarzeń.
SPECYFIKACJA TECHNICZNA
KONSTRUKCJA:
spawana rama podłogi, stropodachu oraz słupy usytuowane w narożach modułu. Elementy konstrukcji pokryte są powłokami antykorozyjnymi w kolorze czerwonym RAL 3000 – WYNAJEM, lub dowolnym kolorze z palety RAL – SPRZEDAŻ. Woda deszczowa odprowadzana jest rynnami PCV umieszczonymi wewnątrz słupów narożnych kontenera. Konstrukcja nośna kontenera w klasie EXC2 wg normy PN EN 1090-1. Oznakowanie CE. Elementy spawane zgodnie z PN EN ISO 3834-2.
STROPODACH:
blacha ocynkowana gr. 0,55 mm, płyta wiórowa gr. 12 mm, wełna mineralna gr. 50 mm, płyta warstwowa: blacha lakierowana, styropian gr. 50 mm, blacha lakierowana biała. Charakterystyczne normowe obciążenie śniegiem 1,6 kN/m².
ŚCIANY ZEWNĘTRZNE:
blacha lakierowana gr. 0,55 mm w kolorze szarym RAL 7035 profilowana, styropian gr. 75 mm, blacha lakierowana gr. 0,55 mm w kolorze białym RAL 9010 gładka.
ŚCIANY WEWNĘTRZNE:
system ścianek gipsowych w kolorze białym o wys. 2,2 m, montowane na nóżkach.
PODŁOGA:
ocynkowana blacha trapezowa, wełna mineralna gr. 100 mm, folia paroprzepuszczalna, płyta gr. 20 mm, wykładzina PCV o gr. min. 2 mm, w kolorze szarym. Wykończenie podłogi wykładziną wywiniętą na ścianę kontenera. Maksymalne obciążenie podłogi użytkowej 250 kg/m².
OKNA PCV:
(U), (SZ) 855 x 535 mm białe, białe z szybą matową.
DRZWI:
zewnętrzne: jednoskrzydłowe stalowe, 900 x 2000 mm,
wewnętrzne: jednoskrzydłowe białe, 800 x 2000 mm.
INSTALACJA ELEKTRYCZNA PODSTAWOWA:
tablica bezpiecznikowa, gniazda i oświetlenie, wyłącznik siłowy 5 x 32 A,
przewody prowadzone natynkowo, białe korytka.
INSTALACJA ELEKTRYCZNA OPCJONALNA:
ogrzewanie elektryczne, klimatyzacja, wentylacja.
INSTALACJA WENTYLACYJNA:
grawitacyjna z kratkami nawiewnymi 25 m³/h.
INSTALACJA WODNO – KANALIZACYJNA:
rury PP, instalacja wodociągowa z rur PP, instalacja kanalizacyjna z rur PCV.
ŁAZIENKA:
muszla ustępowa stojąca, pisuar, kabina natryskowa, elektryczny podgrzewacz wody, lustro z półką, uchwyt na papier toaletowy.
Jesteś zainteresowany kupnem kontenerów sanitarnych?
Skontaktuj się z nami
Profesjonalni doradcy czekają na Ciebie: Warszawa, Łódź, Wrocław, Gdańsk, Kraków, Poznań, Rzeszów, Katowice, Szczecin, Dębica, Starachowice, Kielce, Białystok, Toruń, Dębica, Płock, Bydgoszcz, Zielona Góra, Suwałki, Lublin
Kontenery sanitarne – wymiary i cechy charakterystyczne
KONTENER SANITARNY wielostanowiskowy MS 28
Sanitarny z prysznicem
KONTENER SANITARNY prysznicowy MZ 20
Kontener sanitarny prysznicowy
KONTENER SANITARNO SOCJALNY MK 20
Kontener sanitarny z kuchnią
KONTENER SANITARNY MW05
Mały kontener sanitarny
KONTENER SANITARNY MW 10
Mały sanitariat damsko męski
KONTENER SANITARNY MS 10
Mały kontener sanitarny z prysznicem
ZBIORNIK SZAMBO MT 10
Mały zbiornik na ścieki i fekalia
ZBIORNIK NA FEKALIA MT 20
Zbiornik na ścieki do kontenerów
ZBIORNIK NA WODĘ MVT20
Zbiornik na wodę użytkową
KONTENER ZE ZBIORNIKIEM NA WODĘ
Zbiornik na wodę użytkową
NAPISZ DO NAS
Usługi kontenerowe
- wynajem kontenerów
- sprzedaż kontenerów
- leasing kontenerów
- doradztwo inwestycyjne
- projektowanie kontenerów
- producent kontenerów
- posadowienie kontenerów dźwigiem HDS
- montaż kontenerów i budynków modułowych
- serwis i montaż kontenerów
- transport i logistyka kontenerów
- naprawa i konserwacja kontenerów
- obsługa indywidualnych zamówień
- części do kontenerów morskich i magazynowych
- sprzedaż plomb do kontenerów
Przeznaczenie kontenerów
- biuro budowy
- szatnia pracownicza
- pomieszczenia socjalne
- zaplecza budowlane
- jadalnia i stołówka pracownicza
- zakwaterowanie pracowników
- ogrzewalnie z kontenerów
- zaplecze budowy
- kasa biletowa
- podręczny magazyn, garaż
- wynajem RTV i AGD
- wynajem regałów do kontenera
- kontener mieszkalny
- kontenery na dokumenty
- zbiorniki szamba na ścieki i fekalia
- wynajem mebli do kontenerów
Rodzaje kontenerów
- pawilon handlowy
- sala konferencyjna
- obiekt usługowy
- portiernia, budka strażnika, mistrzówka, wartownia
- warsztat z kontenera
- schronisko dla bezdomnych
- przedszkola i szkoły modułowe
- tymczasowe dworce
- zaplecza sportowe
- archiwum na dokumenty
- obiekt gastronomiczny kawiarnia
- sanitariaty i umywalnie dla pracowników
- kontenery na eventy
- obiekty dla uchodźców
